Allegato 1: Struttura A - Tav 01 - pianta fondazioni
Descrizione: Nuovo intervento edilizio residenziale in Viale Trento e Trieste n.25 - Cremona   
Committente: Costruzioni Vago Giuseppe S.R.L., Viale Trento e Trieste n.41 - Cremona
Prestazioni: calcoli strutturali c.a., verifica sismica secondo NTC 08, relazione di calcolo, progetto preliminare, definitivo, esecutivo e direzione lavori c.a. 
Periodo: 2014
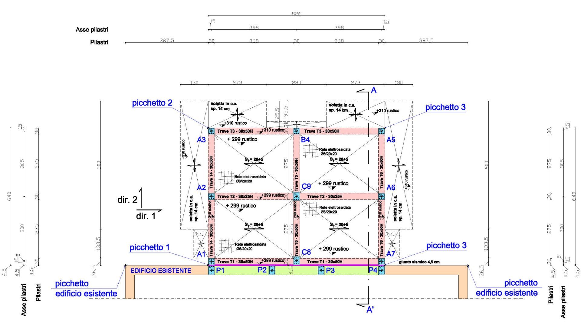
Descrizione: 
Ristrutturazione con ampliamento di un fabbricato esistente con realizzazione di n.7 unità abitative e relative autorimesse di pertinenza – Via Carlo Martelli n. 11/13 - Casalmaggiore (CR)
Committente: 
Orion S.r.l. – Via Delle Industrie n.22 - Casalmaggiore (CR)
Prestazioni: 
relazione di vulnerabilità sismica, consolidamento murature con adeguamento della struttura, calcolo telaio in c.a. per ampliamento fabbricato esistente e nuove autorimesse, progettazione preliminare, definitiva, esecutiva e direzione lavori c.a.
Periodo: 
2018
Approfondimenti:
  
  
  
  
  
  
  
  
  
 








